Specificaties

| Art.nr. | TDP015977 |
|---|---|
| Fabrikant | Tuindeco |
| Dakbedekking | Exclusief |
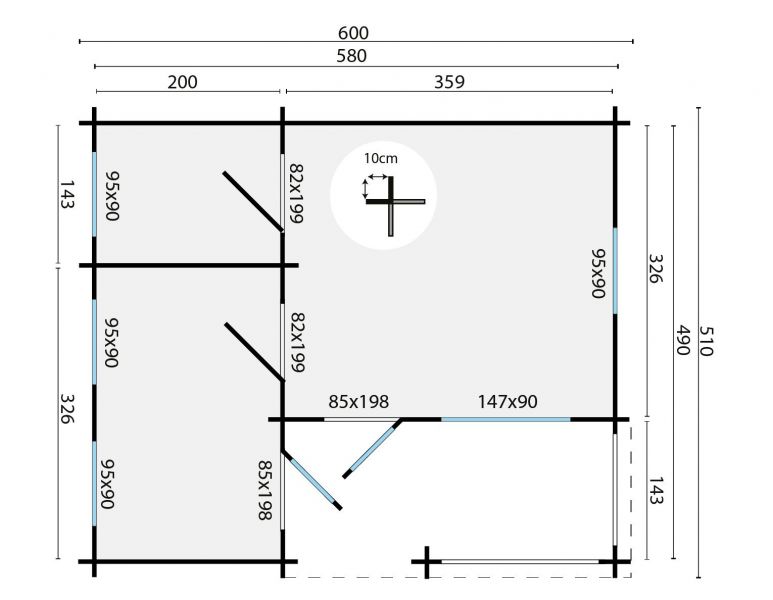
| Funderingsmaat | 580 x 490 cm |
| Materiaal | Geïmpregneerd vurenhout |
| Behandeling Materiaal | Geïmpregneerd |
| Houtsoort | Geschaafd, gedroogd vuren |
| Afmeting (LxB) | 600x510 cm |
| Ramen | 1 vast raam, 4 draai-kiep ramen en een dubbel raam (waarvan één draai-kiep en één draai) |
| Deur | 2 enkele deuren |
| Nokhoogte | Ca. 370 cm |
| Wanddikte | 70 mm |
| Pakket afmeting Ca. | Pakket 1 600x120x74, pakket 2 600x120x83 cm en pakket 3 235x110x95 cm. |
| Pakket gewicht Ca. | Pakket 1 en 2 1700 kg, pakket 3 175 kg. |
| Garantie | Op dit product ontvangt u 5 jaar garantie. |
| Beglazing | Dubbel glas. |
| Extra informatie | Dit chalet heeft een verdiepingsvloer. |
| Kleur | Bruin geïmpregneerd, geschaafd, gedroogd vuren |
| Dakoppervlak | 38.2m2 |
| Oversteek rondom | 20 cm |
| Cilinderslot | Inclusief |
| Hang en sluitwerk | Inclusief |
| Daktype | Zadeldak |
| Funderingsmaat inclusief funderingsbalken | 583x493 cm |
| Deurhoogte incl. kozijn | 195 cm |
| Breedte | 510 cm |
| Lengte | 600 cm |
| Hoogte | 371 cm |
| Afmeting raam | 95x96 cm en 147x96 cm |
| EAN code | 8715815689136 |
Omschrijving
Tuindeco-chalet Morgenster 600x510 cm geïmpregneerd is met zijn verdiepingsvloer en verschillende ruimtes perfect geschikt voor bijvoorbeeld een gastenverblijf. Met de inpandige luifel van 150 cm heeft u ook nog een mooi overdekt stuk aan de voorkant.;
De geïmpregneerde variant op de chalet Morgenster van Tuindeco wordt standaard uitgevoerd in 70 mm wanddelen. Let op: deze blokhut wordt geleverd exclusief ramen en deuren. Deze kunt u optioneel meebestellen.De chalet is verduurzaamd middels bruine impregnatie. Op deze manier is uw blokhut beter beschermd tegen schimmel en rot. De chalet heeft 1 vast raam, 4 draai-kiep ramen en een dubbel raam (waarvan 1 draai-kiep raam en 1 draai). U krijgt zelfs een bouwtekening meegeleverd, zodat u ervoor kunt kiezen om de chalet zelf op te bouwen.
U kunt er ook voor kiezen of u tegen betaling funderingsbalken aan de Tuindeco-chalet wilt toevoegen. Hier heeft u de keuze uit hardhouten of composiet. Er is ook de optie om geen funderingsbalken toe te voegen, echter raden wij dit wel aan. Het aanschaffen van funderingsbalken verlengt de levensduur en tevens uw genot van de chalet Morgenster.
- Geschikt om zelf op te bouwen
- Hoge kwaliteit voor een lage prijs
- Multifunctioneel door verschillende ruimtes
- Bruin geïmpregneerd voor duurzaamheid

Anderen bekeken ook
* Stel hier uw vraag over het getoonde product. Voor een maatwerk oplossingen kunt u HIER een aanvraag indienen. Neem voor vragen over de levertijd en/of bezorging rechtstreeks contact op met onze verkoopadviseurs.


























