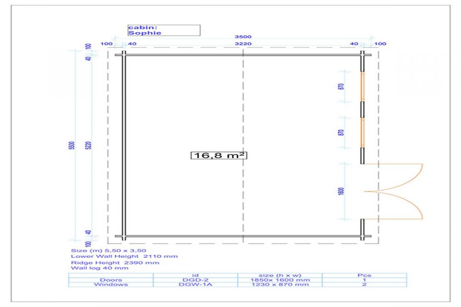
Specificaties

| Art.nr. | TDP014734 |
|---|---|
| Fabrikant | Tuindeco |
| Dakbedekking | Exclusief |
| Kleur | Blank |
| Funderingsmaat | 530 x 330 cm |
| Materiaal | Onbehandeld vurenhout |
| Behandeling Materiaal | Onbehandeld |
| Houtsoort | Geschaafd, gedroogd vuren |
| Afmeting (LxB) | 550x350 cm |
| Ramen | 2 (te openen) |
| Deur | Dubbele deur |
| Nokhoogte | 239 cm |
| Wanddikte | 40 mm |
| Garantie | 5 jaar |
| Beglazing | Dubbel glas |
| Extra informatie | Voor het toepassen van een dakgoot is een extra wandlaag nodig. |
| Kleur | Onbehandeld, geschaafd, gedroogd vuren |
| Afmeting dubbele deur | 160x185 cm |
| Gespiegeld op te bouwen | Ja |
| Cilinderslot | Inclusief |
| Hang en sluitwerk | Inclusief |
| Daktype | Zadeldak |
| Funderingsmaat inclusief funderingsbalken | 539x339 cm |
| Breedte | 350 cm |
| Lengte | 550 cm |
| Hoogte | 239 cm |
| Afmeting raam | 87x123 cm |
| EAN code | 8715815621327 |
Omschrijving
Tuindeco-blokhut Sophie 550x350 cm maakt uw tuin compleet met haar strakke uiterlijk. Deze blokhut is voor veel doeleinden geschikt vanwege haar grootte. U kunt het gebruiken als berging, maar ook als tuinhuisje. Met de wind- en waterdichte hoekverbindingen blijven al uw spullen veilig en droog staan.
Blokhut Sophie van Tuindeco wordt standaard blank uitgevoerd in 40 mm wanddelen met een dubbele deur en dubbel glas. Er wordt zelfs een bouwtekening meegeleverd, zodat u de blokhut ook zelf kunt opbouwen. Het is hierbij mogelijk de voorwand gespiegeld op te bouwen door de deur en de ramen van kant te verwisselen.
U kunt er ook voor kiezen of u tegen betaling funderingsbalken aan de Tuindeco-blokhut wilt toevoegen. Hier heeft u de keuze uit hardhouten of composiet. Er is ook de optie om geen funderingsbalken toe te voegen, echter raden wij dit wel aan. Het aanschaffen van funderingsbalken verlengt de levensduur en tevens uw genot van de blokhut Sophie.
- Veilige en droge berging
- Geschikt om zelf op te bouwen
- Hoge kwaliteit voor een lage prijs
- Dubbele deur voor toegankelijkheid

Anderen bekeken ook
* Stel hier uw vraag over het getoonde product. Voor een maatwerk oplossingen kunt u HIER een aanvraag indienen. Neem voor vragen over de levertijd en/of bezorging rechtstreeks contact op met onze verkoopadviseurs.



































